CONSENT APPLICATION NO. D10-05/25
REBECCA VITUMS
45 BOWMAN STREET: ROLL NUMBER 4418 010 014 040 00
EXPLANATION OF THE PURPOSE AND EFFECT OF THE CONSENT APPLICATION
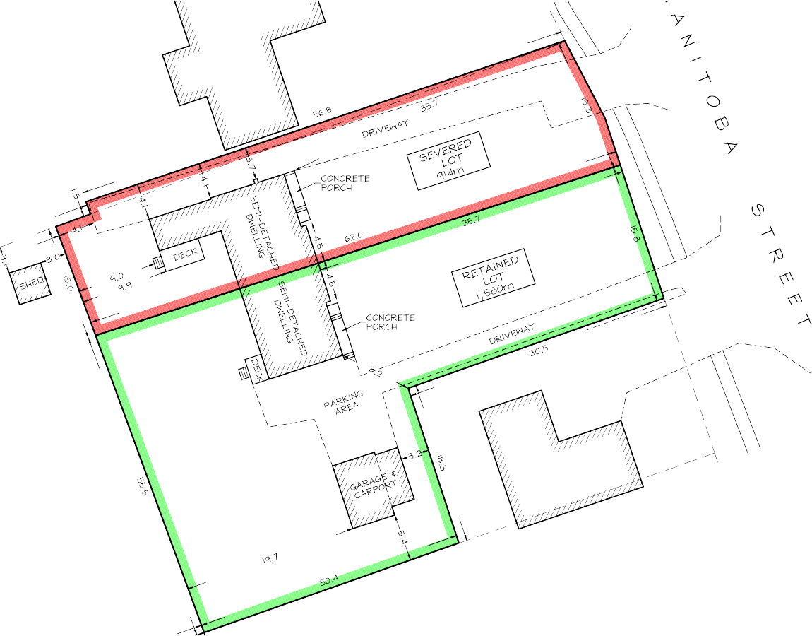
An application for consent has been submitted for the lands located at 45 Bowman Street and legally described as part of Lot 3, Concession 1, Macaulay Ward, Town of Bracebridge, being Lot 52 and 53 on Plan 26. If approved, the application would result in one severed parcel and one retained parcel.
The subject lands are approximately 2,307 square metres (0.57 acres) in area with approximately 70.7 metres (231.96 feet) of frontage on Bowman Street. The severed lot would be approximately 750 square metres (0.19 acres) in area and have 50.7 metres (166.3 feet) of frontage on Bowman Street. The retained lot would have a resultant lot area of approximately 1557 square metres (0.38 acres) in area and have 20 metres (65.6 feet) of frontage on Bowman Street.
KEY PLAN

SKETCH


