MINOR VARIANCE APPLICATION NO. D13-29/25
COREY VARGA, SHELLY VARGA, CHRISTOPHER PRITULA AND STEPHANIE MURPHY
1039 SPRINGDALE SHORES - ROLL NUMBER 4418 040 017 024 00
EXPLANATION OF THE PURPOSE AND EFFECT OF THE PROPOSED MINOR VARIANCE
The minor variance application was submitted in order to recognize an addition to a dwelling, a dock, and a shed.
Specifically, the applicants are requesting relief from Section 3.3.3.1 of Comprehensive Zoning By-law 2016-088 in order to permit a dwelling in the Shoreline Residential Type 1 (SR1) zone with a 4.51 metre (14.80 foot) setback from the front lot line, whereas the Zoning By-law requires a setback of 7.50 metres (24.61 feet) where the front lot line abuts a road.
The applicants are also requesting relief from Section 3.3.3.1 of Comprehensive Zoning By-law 2016-088 in order to permit a dwelling in the Shoreline Residential Type 1 (SR1) zone with a 12.00 metre (39.37 foot) setback from the centreline of the road, whereas the Zoning By-law requires a setback of 17.50 metres (57.41 feet).
The applicants are also requesting relief from Section 4.4.3 of Comprehensive Zoning By-law 2016-088 in order to permit a total occupied portion of the shoreline of 55.7 % of the lot frontage or 9.75 metres (32.00 feet), whereas the Zoning By-law permits a maximum total occupied portion of the shoreline of 25% of the lot frontage or 4.38 metres (14.37 feet).
The applicants are also requesting relief from Section 4.3.3 i) of Comprehensive Zoning By-law 2016-088 in order to permit a shed with a side yard setback of 0.76 metres (2.49 feet), whereas the Zoning By-law permits a setback of 1.2 metres (3.94 feet).
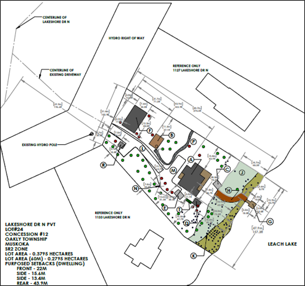
KEY PLAN

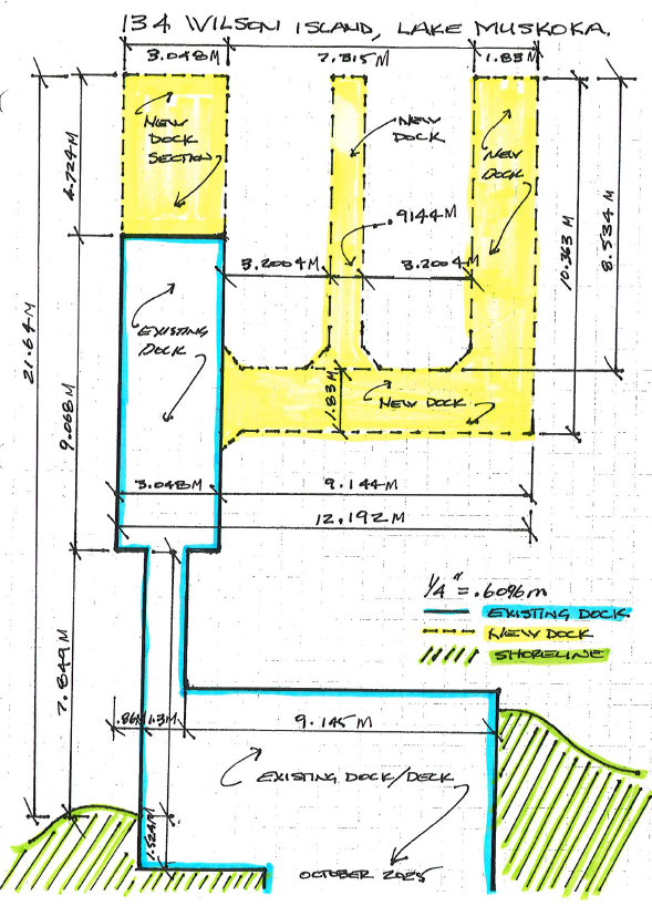
SKETCH OF PORCH SETBACK AND SHORELINE

SKETCH OF SHED SETBACK

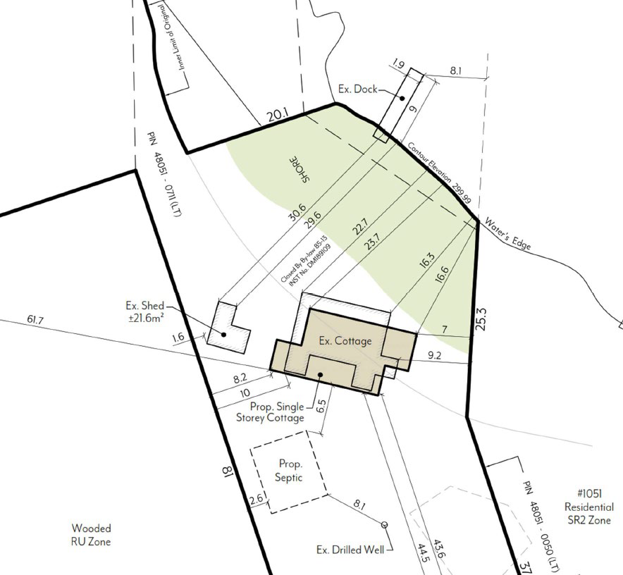
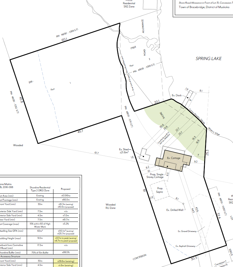
SKETCH OF THE ENTIRE PROPERTY

ELEVATION DRAWINGS OF DWELLING













